横浜市西区岡野1丁目貸店舗(7F)
横浜市西区岡野1丁目貸店舗(7F)
アクセス
賃料・初期費用等
賃料
月額 38万円 税別
管理費等/共益費等
- / なし
権利金/礼金
2.00ヶ月
保証金/敷金
6.00ヶ月 / -
償却/敷引
2ヶ月 / なし
物件情報
物件番号
00000000000000101646
物件種別
貸店舗(一部)
建物構造
軽・重量鉄骨造(S造) / 地上8階
使用階/部屋番号
7
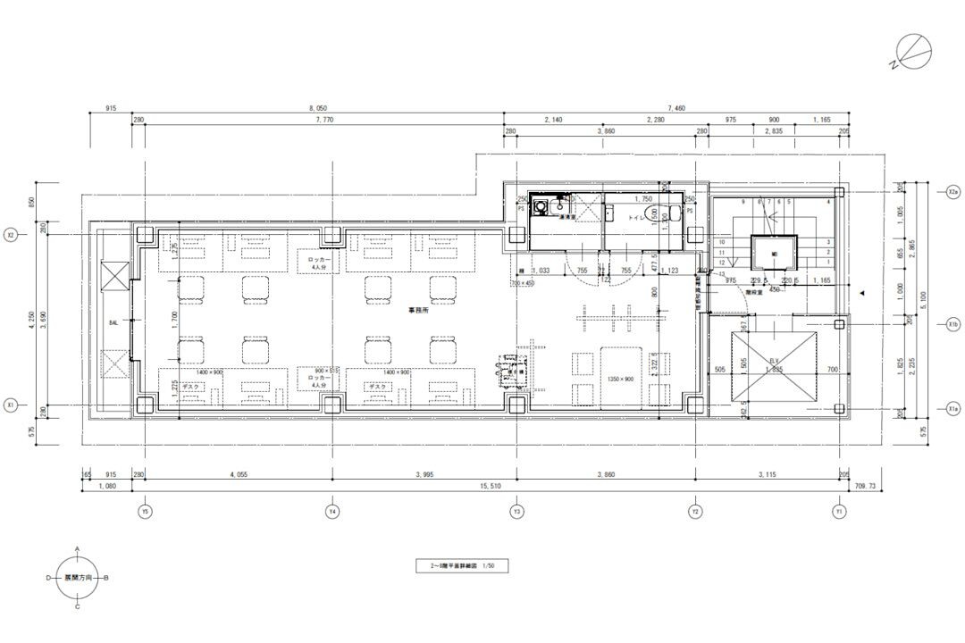
面積
58.30m2
坪数
17.64坪
建築年月
-
駐車場
-
契約形態
定期借家
契約期間
6年
現況
-
引渡し
2026年05月01日
更新料
再契約料:新賃料の1ヶ月
造作譲渡料
-
適用業種
物販
ファッション・雑貨
ネットカフェ・漫画喫茶
塾・スクール
理美容・サロン
クリニック・介護
美容室・理容室
エステサロン
その他サロン
マッサージ・整体院
歯科
病院・クリニック
美容・医療・介護その他
事務所
特長
エレベータ
トイレ
備考
- 再契約事務手数料:新賃料0.5ヶ月
- 契約満了日:2032年04月30日
- 中途礼金:賃料の1.5ヶ月(2029年4月30日発生)
- 指定火災保険加入必須※原則は当社指定の保証会社にご加入いただきます。(与信内容により免除の場合あり)
- 飲食店・カラオケ不可
- 排気設備:外部ダクト無(直吹)
- グリスト:無
- エレベーター:有(1基)

