杉並区高円寺北3丁目貸店舗
杉並区高円寺北3丁目貸店舗
アクセス
賃料・初期費用等
賃料
月額 33万円 税別
管理費等/共益費等
30,000円(税抜) / なし
権利金/礼金
3.00ヶ月
保証金/敷金
3.00ヶ月 / -
償却/敷引
3ヶ月 / なし
物件情報
物件番号
00000000000000103107
物件種別
貸店舗(一部)
建物構造
木造(W造) / 地上2階
使用階/部屋番号
2
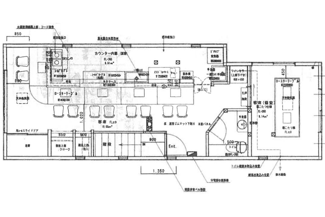
面積
49.22m2
坪数
14.89坪
建築年月
-
駐車場
-
契約形態
定期借家
契約期間
5年
現況
空
引渡し
即日
更新料
未定
造作譲渡料
3,500,000円(税抜)
適用業種
重飲食
ラーメン・中華料理
焼肉・韓国料理
カレー・多国籍料理
和食・寿司
うどん・そば
焼き鳥
鉄板焼き・お好み焼き
洋食・レストラン
居酒屋・ダイニングバー
パン屋・ケーキ屋
テイクアウト・デリバリー
軽飲食
カフェ・喫茶店
バー・スナック・クラブ
その他飲食店
特長
看板設置可
トイレ
駅前
グリストラップあり
立地
駅前
備考
- 契約満了日:2031年12月09日
- 商店会加入必須
- 看板使用料:月額20,000円
- 中途礼金:賃料の1.75ヶ月(2028年12月9日発生)
- 指定火災保険加入必須※原則は当社指定の保証会社にご加入いただきます。(与信内容により免除の場合あり)
- カラオケ不可
- カウンター:8席
- テーブル:4席
- 座敷:10席
- 排気設備:外部ダクト無(直吹)
- グリスト:有 / 埋設

