≪兵庫県・テナント≫グラン姫路 401
≪兵庫県・テナント≫グラン姫路 401
アクセス
賃料・初期費用等
賃料
月額 25.5161万円 税込
管理費等/共益費等
- / -
権利金/礼金
-
保証金/敷金
- / 6.00ヶ月
償却/敷引
- / -
物件情報
物件番号
00000000000000104259
物件種別
貸店舗・事務所(一部)
建物構造
鉄骨鉄筋コンクリート造(SRC造) / 地上11階
使用階/部屋番号
4
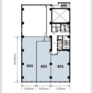
面積
90.24m2
坪数
27.30坪
建築年月
1971年 3月
駐車場
-
契約形態
普通借家
契約期間
2年
現況
空
引渡し
即時
更新料
-
造作譲渡料
-
適用業種
事務所
その他
特長
エレベータ
24時間利用可
トイレ

