≪大阪府・テナント≫UENO倉庫 E号
≪大阪府・テナント≫UENO倉庫 E号
アクセス
賃料・初期費用等
賃料
月額 69.3万円 税込
管理費等/共益費等
- / -
権利金/礼金
-
保証金/敷金
- / 6.00ヶ月
償却/敷引
- / 2ヶ月
物件情報
物件番号
00000000000000104347
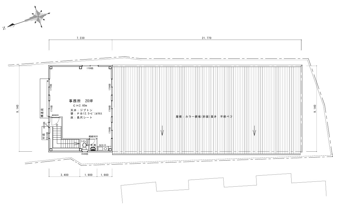
物件種別
貸倉庫
建物構造
軽・重量鉄骨造(S造) / 地上2階
使用階/部屋番号
-
面積
331.14m2
坪数
100.17坪
建築年月
2024年 10月
駐車場
有
契約形態
普通借家
契約期間
3年
現況
居住中
引渡し
2026年7月上旬予定
更新料
-
造作譲渡料
-
適用業種
事務所
倉庫・工場・作業所
その他
特長
トイレ
電動シャッター
看板設置可
24時間利用可
駐車場
路面店
シャッター付き
立地
路面店(1階)

