川越市大字鯨井新田貸店舗・事務所
川越市大字鯨井新田貸店舗・事務所
アクセス
賃料・初期費用等
賃料
月額 89.3244万円 税込
管理費等/共益費等
- / -
権利金/礼金
-
保証金/敷金
- / 6.00ヶ月
償却/敷引
- / -
物件情報
物件番号
00000000000000104361
物件種別
貸店舗・事務所(一部)
建物構造
鉄骨鉄筋コンクリート造(SRC造) / 地上5階
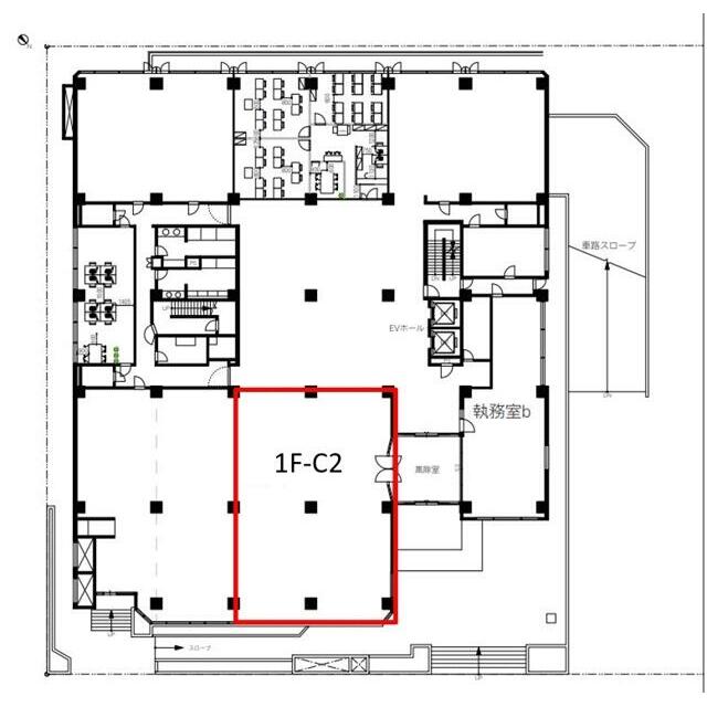
使用階/部屋番号
1/1F-C2
面積
223.72m2
坪数
67.68坪
建築年月
1989年 3月
駐車場
-
契約形態
普通借家
契約期間
3年
現況
空
引渡し
即時
更新料
新賃料 1ヶ月
造作譲渡料
-
特長
エレベータ
備考
- 駐車場:空無
- 駐輪場:有
- 設備:エレベーター エレベーター2基以上
- 居抜き

