≪大阪府・テナント≫芦池第二ビル 1階
≪大阪府・テナント≫芦池第二ビル 1階
アクセス
賃料・初期費用等
賃料
月額 53.3万円 税込
管理費等/共益費等
- / 142,120円
権利金/礼金
-
保証金/敷金
639.6万円 / -
償却/敷引
- / -
物件情報
物件番号
00000000000000104741
物件種別
貸事務所(一部)
建物構造
鉄骨鉄筋コンクリート造(SRC造) / 地上8階
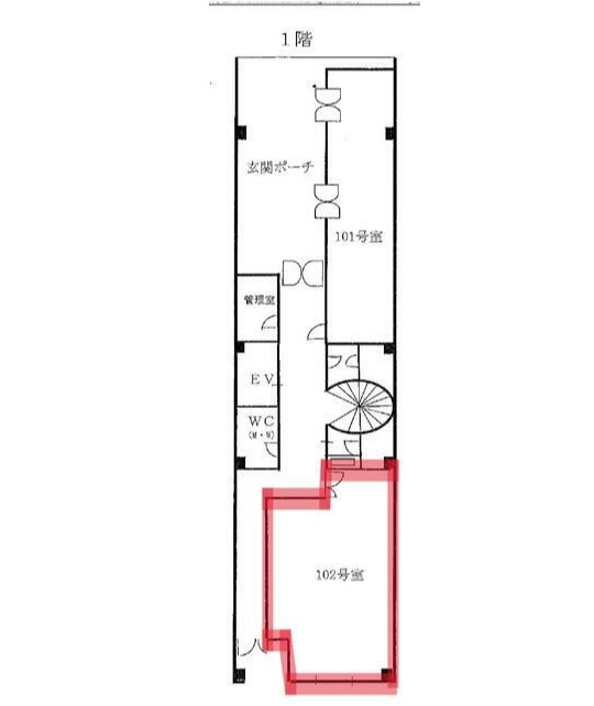
使用階/部屋番号
1
面積
106.77m2
坪数
32.30坪
建築年月
1972年 3月
駐車場
-
契約形態
普通借家
契約期間
2年
現況
空
引渡し
即時
更新料
-
造作譲渡料
-
適用業種
物販
ファッション・雑貨
スタジオ・ホール
塾・スクール
クリニック・介護
エステサロン
その他サロン
マッサージ・整体院
事務所
その他
特長
スケルトン
エレベータ
空調機あり
看板設置可
前面ガラス張り
立地
路面店(1階)

