太陽生命平塚ビル 7階
太陽生命平塚ビル 7階
アクセス
賃料・初期費用等
賃料
月額 67.14万円 税込
管理費等/共益費等
- / 月額134,260円税込
権利金/礼金
1.10ヶ月
保証金/敷金
8.00ヶ月 / -
償却/敷引
解約時保証金の10% / 無
物件情報
物件番号
00000000000250003013
物件種別
貸事務所(一部)
建物構造
軽・重量鉄骨造(S造) / 地上7階
使用階/部屋番号
7
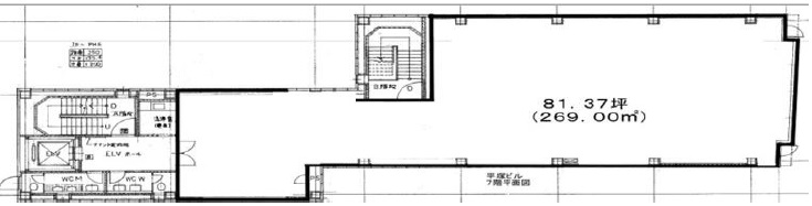
面積
269.00m2
坪数
81.37坪
建築年月
1991年 5月
駐車場
有
契約形態
普通借家
契約期間
3年
現況
空
引渡し
即時
更新料
新賃料の1.1ヶ月
造作譲渡料
-
適用業種
事務所
特長
24時間利用可
立地
駅前
備考
- 店舗総合保険加入要、家賃債務保証要
- 事務所仕様、機械警備付、24時間利用可
- 個別空調、光ケーブル、給湯室
- 新耐震基準対応、2020年大規模改修済
- 物件のお問い合わせは担当:岡田(080-6754-5787)までお気軽に♪

