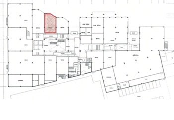
楽市街道箱崎 1階
楽市街道箱崎 1階
アクセス
賃料・初期費用等
賃料
月額 45.68万円 税込
管理費等/共益費等
- / 月額152,240円(税込)
権利金/礼金
-
保証金/敷金
- / 5,536,000万円
償却/敷引
実費 / -
物件情報
物件番号
00000000000262202006
物件種別
貸店舗(一部)
建物構造
軽・重量鉄骨造(S造) / 地上3階
使用階/部屋番号
1
面積
114.38m2
坪数
34.59坪
建築年月
-
駐車場
無
契約形態
定期借家
契約期間
相談
現況
空
引渡し
2026年4月1日以降
更新料
-
造作譲渡料
-
適用業種
重飲食
軽飲食
特長
看板設置可
天高2.5m以上
スケルトン
立地
駅前
ロードサイド
路面店(1階)
備考
- 販売促進費 月額20,000円
- 看板使用料 月額30,000円

