サン・クロレラ第10ビル(事務所)1
サン・クロレラ第10ビル(事務所)1
アクセス
賃料・初期費用等
賃料
330万円
管理費等/共益費等
- / -
権利金/礼金
2.00ヶ月
保証金/敷金
- / 6.00ヶ月
償却/敷引
- / -
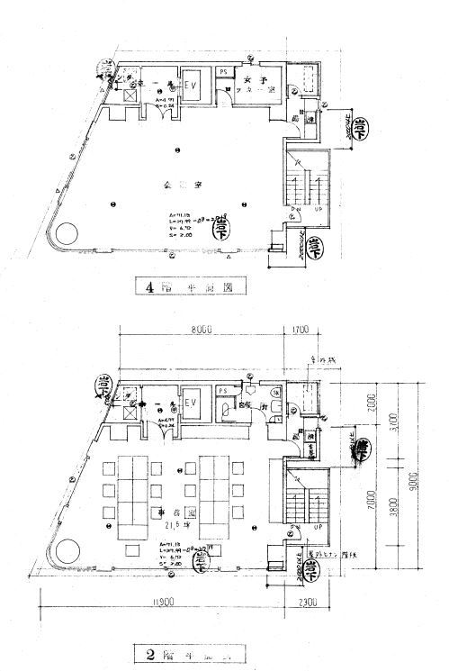
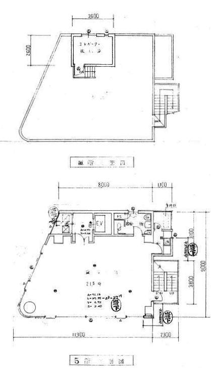
物件情報
物件番号
00000005893103407021
物件種別
貸事務所(一部)
建物構造
鉄筋コンクリート造(RC造) / 地上6階
使用階/部屋番号
6/1
面積
526.42m2
坪数
159.23坪
建築年月
1996年 11月
駐車場
-
契約形態
普通借家
契約期間
-
現況
-
引渡し
-
更新料
330000
造作譲渡料
-

