≪福岡県・テナント≫FL BLD.1 3階部分
≪福岡県・テナント≫FL BLD.1 3階部分
アクセス
賃料・初期費用等
賃料
月額 53.57万円 税込
管理費等/共益費等
- / -
権利金/礼金
-
保証金/敷金
- / 6.00ヶ月
償却/敷引
- / -
物件情報
物件番号
00000000000000101827
物件種別
貸事務所(一部)
建物構造
軽・重量鉄骨造(S造) / 地上10階
使用階/部屋番号
3
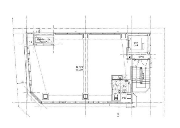
面積
94.64m2
坪数
28.63坪
建築年月
2024年 9月
駐車場
-
契約形態
普通借家
契約期間
3年
現況
空
引渡し
即時
更新料
-
造作譲渡料
-
適用業種
事務所
その他
特長
エレベータ
24時間利用可
トイレ

